



En 2015 , PORT-LA-FORET |
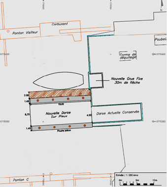
MODERNISE SES OUTILS DE MANUTENTION :- Création d’une nouvelle darse élévateur sur pieux, d’une largeur utile de 7 mètres, opérationnelle début mars ; - Acquisition d’un élévateur de 75 tonnes mis en service fin avril, (en complément de l’actuel élévateur de 25 tonnes qui continuera à évoluer sur l’ancienne darse) ; - Acquisition d’une remorque automotrice à capacité variable 40 à 70 tonnes afin de transporter les navires vers les chantiers du port ; - Acquisition d’une nouvelle grue fixe à flèche télescopique de 30m et d’une capacité de 3 tonnes à 20 mètres, opérationnelle fin mars 2015.
|
INSTALLE 240 mètres de PONTONS :- Pour permettre l’accueil de navires en escale technique et conforter l’activité des entreprises du port autour du plateau technique et des nouveaux moyens de manutention. - Pour ancrer l’activité course au large sur le port et notamment l’installation du nouveau trimaran de la série « Ultime » construit chez CDK Technologies pour François GABART qui a décidé de baser son équipe à PORT-LA-FORET pour la préparation de nouveaux défis. La Capitainerie continuera à assurer la manutention des navires par élévateur ou remorque sans restriction pendant les travaux à partir de la cale Nord et de la darse à certaines heures. La grue actuelle sera démontée début février. La nouvelle grue sera mise en service à la fin du mois de mars 2015. Ces travaux représentent un investissement de 1.390 M€ financés par la SAEM SODEFI à hauteur de 1.170 M€ et par le Conseil Général pour 214 K€.
|
|
Au cours du printemps 2015, les locataires recevront des badges permettant l’accès aux colonnes de tri sélectif et, plus tard, aux différents équipements tels que les sanitaires. En 2016, un nouveau bâtiment sanitaire équipé de salles de bains sera construit face au ponton E. Dès 2017, débutera le remplacement des pontons A à H et du ponton M, ces éléments datent de 1988 et feront place à des nouvelles pannes aux catways en «Y » rallongés, au même niveau que le ponton, pour faciliter l’accès aux navires. L’équipe du port vous souhaite une très bonne année et vous remercie de votre compréhension pour la gêne momentanée que ces travaux pourraient occasionner. |
| ACCUEIL PLAN DU PORT ENVIRONNEMENT METEO |
SERVICES ACCES MAREES WEBCAM EN DIRECT |
INFOS CONTACT FORMULAIRES ET LIENS PAIEMENT EN LIGNE DESINSCRIPTION |
CAPITAINERIE DE PORT-LA-FORÊT - 29940 LA FORÊT FOUESNANT - Tél. 02 98 56 98 45 - Fax 02 98 56 81 31 - capitainerie@port-la-foret.fr